好案報報
✳物件照片、室內格局示意圖僅供參考使用,若有室外照片屬周遭環境介紹。
地址:新北市新店區安祥路
總坪:76.24坪
型態:電梯大樓/華廈
主建:39.09坪
所在樓層:3F/6F
附屬:7.26坪
屋齡:2018-06
公設:18.34坪
車位:11.55坪
管理費:4605元/月
品味裝潢約250萬裝潢
稀有釋出
通風採光佳
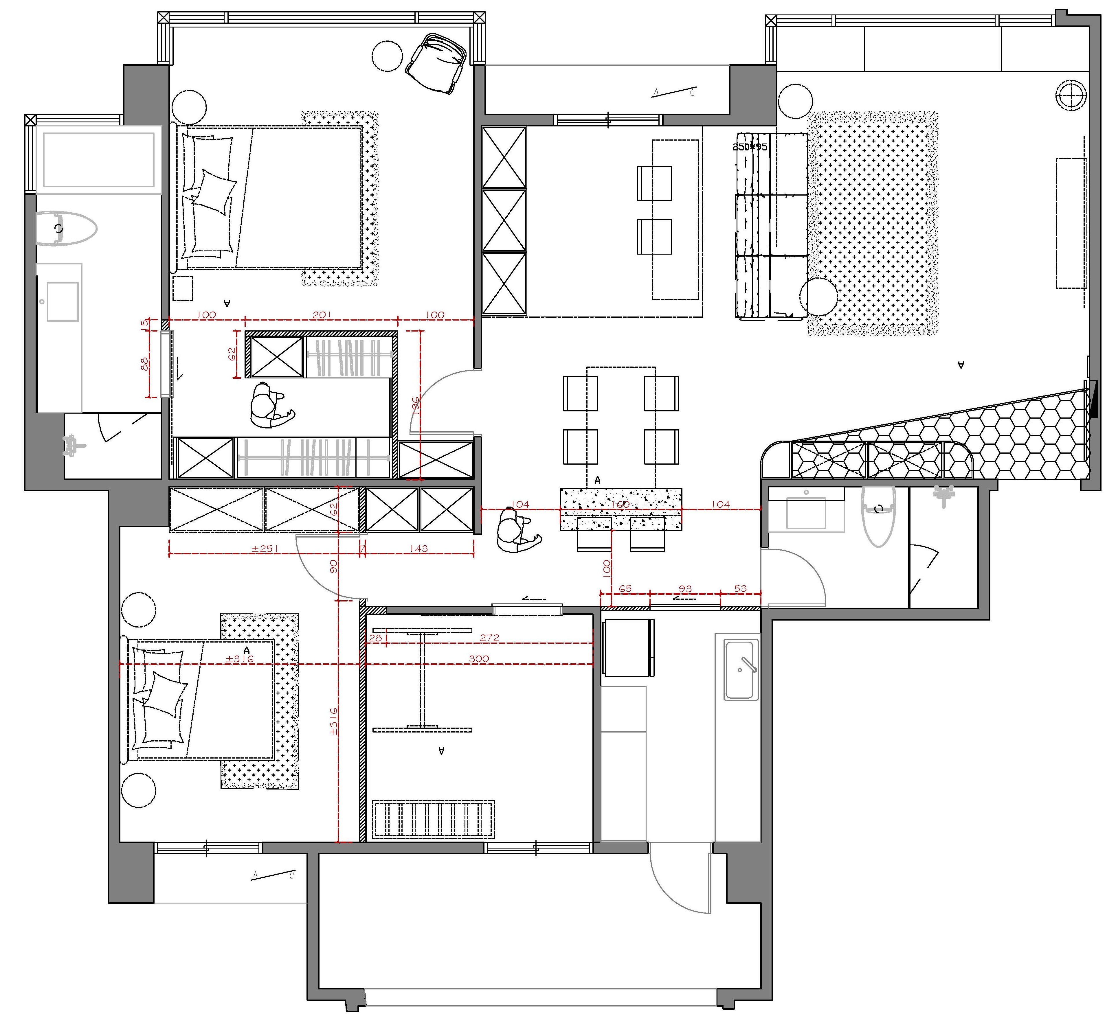
原始四房現況3+1房
隔壁車位有裝充電樁
✳物件資訊僅供參考,實際交易條件(如價格、屋齡、圖片、影片、實際地理位置等)仍以現場查核及地政機關登載資料為準,本公司保留修改與最終解釋之權利。
總價
2580 萬
格局
3房2廳2衛
總坪數
76.24坪
聯絡房產顧問