Case Area

好案報報

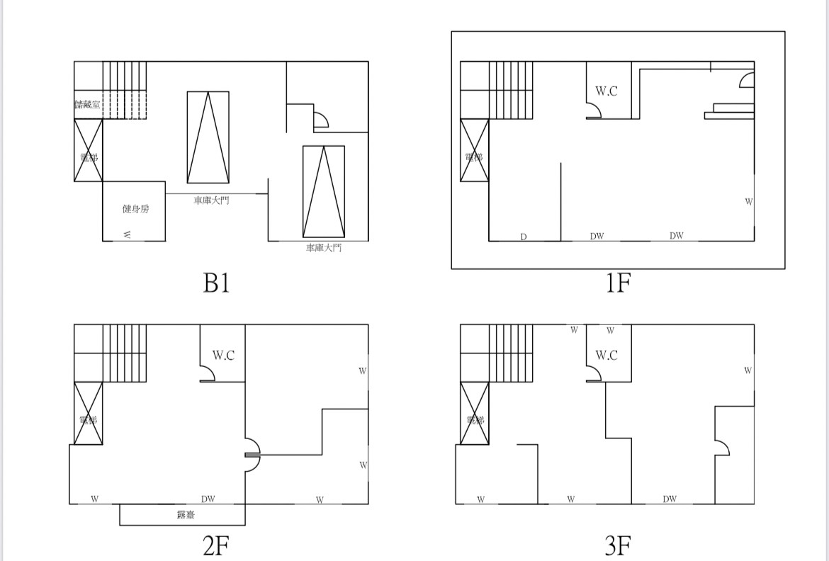
✳物件照片、室內格局示意圖僅供參考使用,若有室外照片屬周遭環境介紹。


基本資料

地址:新北市新店區頂城五街

總坪:120.93坪

型態:別墅

主建:115.57坪

所在樓層:-1F~3F

附屬:5.36坪

屋齡:約14年

公設:

車位:

管理費:

稀有秀水特區鋼骨電梯別墅釋出

近康橋校區,步行約三分鐘即可到達

社區極度稀有可停兩部車

大陸工程品牌社區

地圖位置

✳物件資訊僅供參考,實際交易條件(如價格、屋齡、圖片、影片、實際地理位置等)仍以現場查核及地政機關登載資料為準,本公司保留修改與最終解釋之權利。

你可能會喜歡

新店近郊區(青山鎮、華城、烏來...等) 別墅

㊄青山鎮秀水雙車電梯別墅㊄

新北市新店區頂城五街

總價

10880

格局

4房(含)以上2廳3衛

總坪數

120.93坪


聯絡房產顧問