建案介紹
安坑 | 風華
「風華」位於新北市新店區安康路二段,擁有十分鐘車程直達敦南遠企商圈的便利性,周邊環繞安康森林公園、安康圖書館,以及機能完整的安成街採買區,提供住戶豐富的生活資源。本建案由優質建商規劃,以高CP值為核心,最低入門總價20坪J棟



|
|
|---|
成熟機能,便利生活,風華坐落於安坑區機能最成熟的生活圈,周邊有安成街商圈、家樂福、碧潭市場等完善的採買環境,讓日常生活更為便利。此外,6分鐘車程可達安坑醫療機構耕莘醫院安康分院,提供住戶安心的醫療保障。
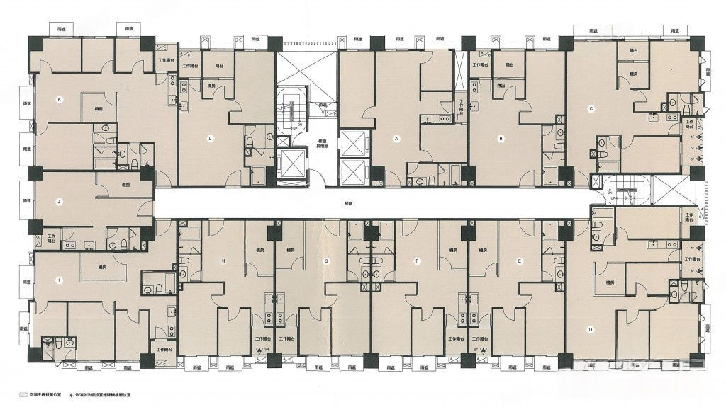
頂級建材,精緻規劃,社區規劃地上15層、地下4層,總戶數164戶,基地面積達770坪,公設比31.5%。本案採用高品質建材,包括Mitsubishi電梯、TOTO衛浴、德國進口廚具,並搭配7.2米挑高大廳,營造飯店級的尊榮享受。
交通四通八達,直通台北核心,安坑曾被詬病的交通問題,隨著安坑一號快速道路的開通與捷運安坑線的建設逐步改善,讓通勤更加便利。建案附近的中安快速道路可直通敦南商圈,北二高亦可快速銜接台64、台65,往來台北市中心、內湖、汐止等地區更加迅速。
學區優勢,書香氣息濃厚,本案鄰近安康國小、安康完全中學、人高中、康橋雙語學校及景文科技大學,打造優質學區環境,適合重視子女教育的家庭。

綠意環繞,休閒舒適,安康森林公園、陽光運動公園皆近在咫尺,提供豐富的運動與休閒空間,讓住戶擁有更健康的生活方式。
安坑未來發展利多,新北市政府規劃安坑「十四份地區都計變更案」,將結合商業、旅館、飯店等設施,未來可望成為新店左岸的新商業重鎮。此外,全台首座南洋風國際觀光夜市也將進駐安和路,進一步提升區域發展潛力。
2房 - 36坪
適合單身貴族或新婚夫妻,小而美的空間規劃,機能完善。
3房 - 42坪
標準家庭住宅配置,空間舒適,滿足小家庭需求。
4房 - 56坪
寬敞格局,適合三代同堂或需要多功能空間的住戶。
「風華」結合繁華機能與寧靜居住環境,提供住戶最優質的生活體驗,無論是交通、生活機能或未來發展,都展現極高的居住價值。